福岡のリノベ物件プロデュース・販売
きりん不動産のリノベーション

契約済
福岡市城南区干隈
アダージュ城南
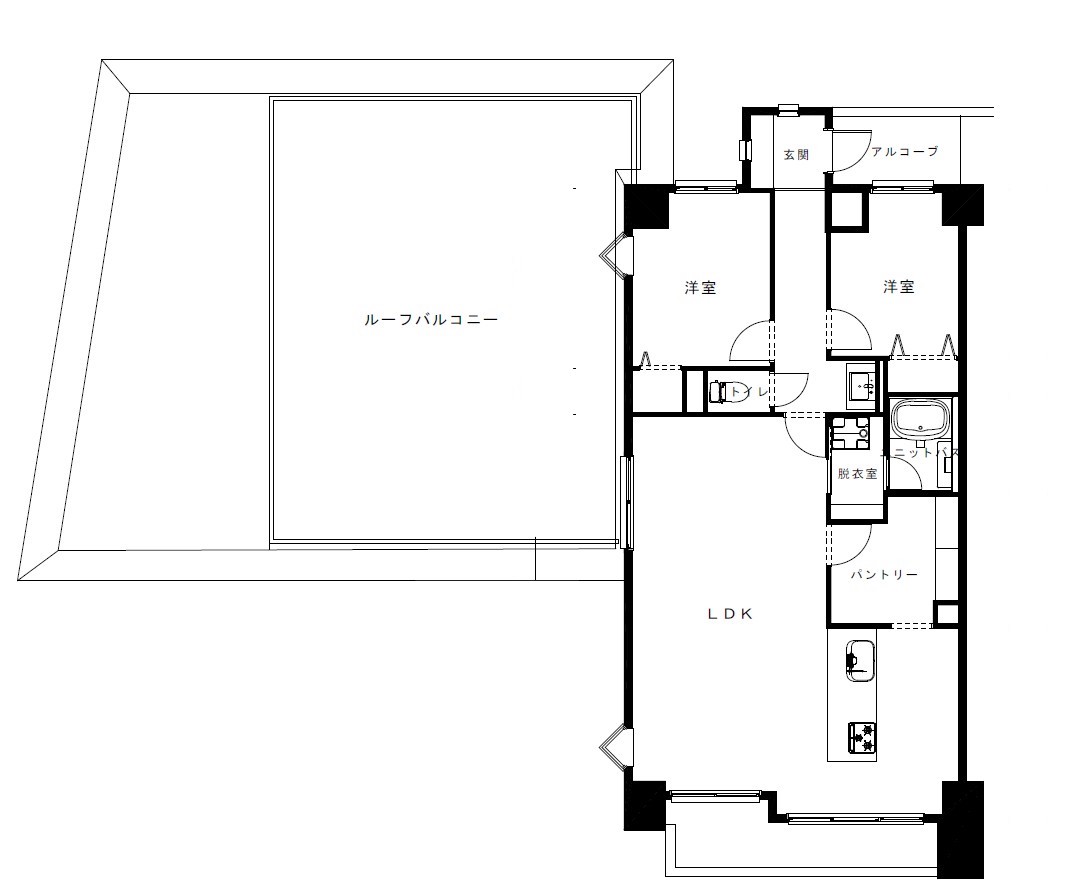
超LDK主義2
23帖のLDKから、直接38帖のルーフバルコニーに出ることができる間取りにリノベーションしました!各個室で生活するというより、できる限りこのLDKで時間を過ごす!その気持ちよさを追求している超LDK主義のお部屋の第2弾!今回はより進化させ、キッチンからLDKからの収納力にもコダワリました!地下鉄野芥駅徒歩7分、日当たり風通しが良い、シュッとした設備選び等、細やかに暮らしを楽しくできる条件も整っております!
物件情報

情報更新日 2025年02月26日

次回更新予定日 2025年03月31日

価格
契約済
所在地
福岡県福岡市城南区干隈 Googleマップで見る
建物名
アダージュ城南
沿線・駅・交通
福岡市七隈線野芥駅徒歩7分
間取り
2LDK+S
間取り内訳
LDK23帖 洋室5.9帖 洋室5帖
サービスルーム数
納戸3帖
専有面積
80.76㎡
専有庭面積
バルコニー
南西10.06㎡
小学校区
福岡市立七隈小学校 距離1394m
中学校区
福岡市立梅林中学校 距離995m
建物構造
鉄骨鉄筋コンクリート造
施工会社
階建
地上9階建て
5階部分
管理費
8100円
積立金
12920円
総戸数
31戸
築年月
1996年5月
駐車場
有り(7000円/月)
土地権利
所有権
管理形態
全部委託(管理組合有)
管理方式
日勤管理
管理会社
東急コミュニティー
用途地域
第一種住居地域
設備
都市ガス 給湯 追焚機能 温水洗浄便座 システムキッチン 食器洗浄乾燥機 シャンプードレッサー 浴室乾燥機 エレベーター オートロック TV付きモニターホン 浴室暖房 3口コンロ
備考
ルーフバルコニー(62.84㎡)使用料1000円/月
取引態様
専任媒介
このような物件をお探しの方へ
新しい物件が続々進行中です!
気になる方はお気軽にお問い合わせください。

\ お急ぎの方は /

\ いつでも問い合わせ /

この物件ができるまで
わたしたちはお客様視点でのいい物件をつくるために、
物件の購入・プランニングからリノベーションを行っております。
この物件に込めたこだわりをご覧ください。

サイト掲載前の物件を優先配信中!

きりん不動産公式LINEアカウントを
友だち追加するだけで、
サイトに掲載する前の物件情報を
いち早くお届け!